Ficha
PISO PARA EL PROXIMO CURSO!!
Salamanca (centro) - REF. 1116

140 m2

5

3

3
alquiler: 1.200 €/mes
Descripción


¡¡SOLO CHICOS POR FAVOR!! ¡ATENCIÓN ESTUDIANTES, PISO PARA EL PRÓXIMO CURSO!
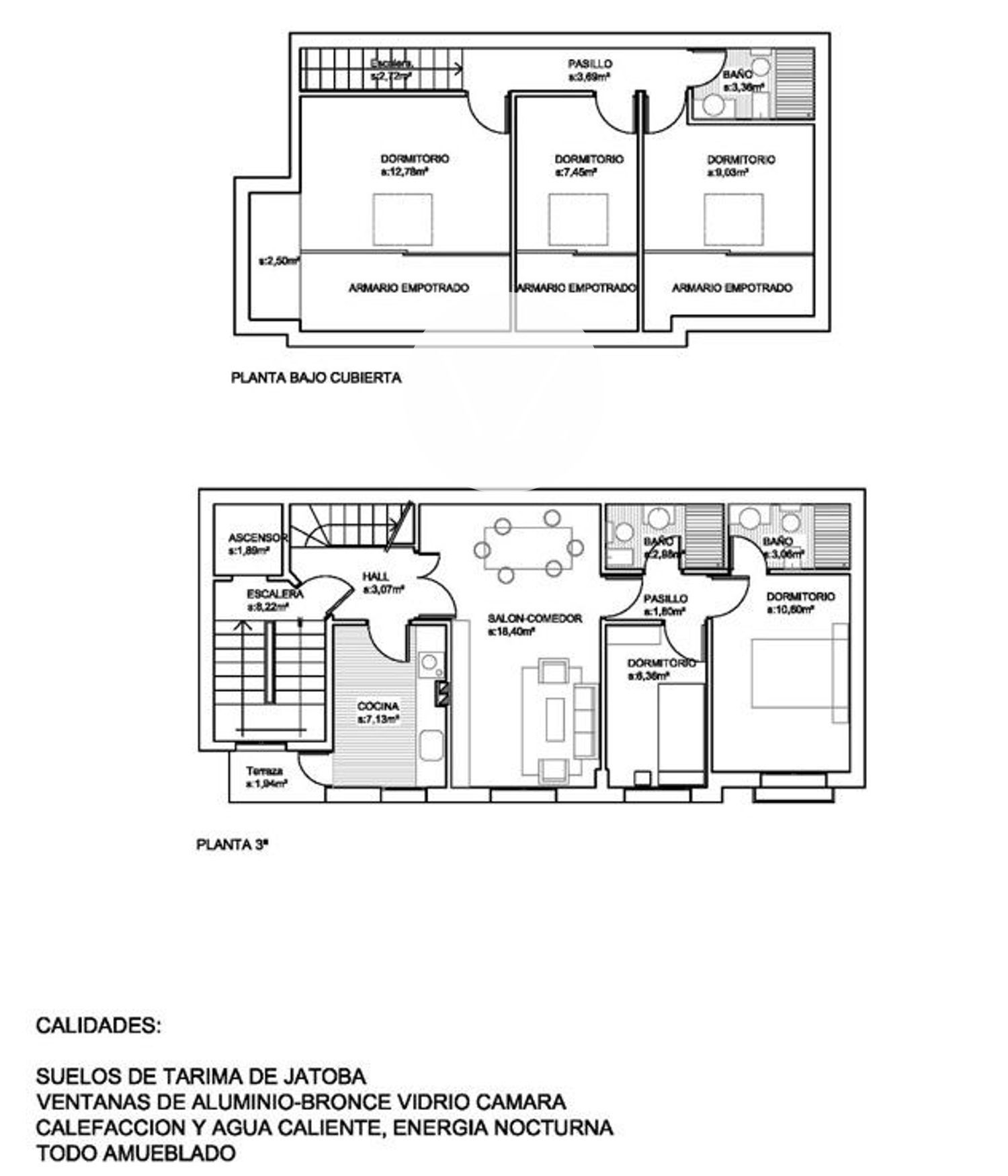
Se alquila fantástico piso para estudiantes para el próximo curso. En Paseo Canalejas, calle albuera, es un dúplex recientemente reformado.
Tiene dos plantas:
Planta baja: cocina, salón, dos habitaciones y dos baños.
Planta primera: tres habitaciones y un baño.
Todo exterior, muy luminoso. Tercera planta con ascensor. Calefacción individual eléctrica. Son acumuladores eléctricos (cargan por la noche que es cuando más barata es la luz y echan el calor por la mañana).
Son 1.200€ al mes.


Características
Precio Alquiler 1.200 €/mes
Construidos 140 m2
Útiles 120 m2
Dormitorios 5
Baños 3
Amueblado
Cocina Amueblada
Calefacción Eléctrica
Altura/Planta 3
Estado Buen Estado
Ascensor
Calificación Energética (D) VER
Luz
Agua
Escalas de eficiencia


Eficiencia Emisiones: 100,00
Eficiencia Consumo: 100,00
100
100

Contáctanos

Si deseas más información sobre esta propiedad, por favor, rellena el formulario.

 Sí, he leído y/o acepto las Condiciones de uso y la Política de privacidad
Inmuebles similares:
 
1.000 €/mes
Ref. 1149  100 m2  4  2
Se alquila fantástico piso en la zona de los Ovalles, en la calle Cortes de Cádiz. Recién reformado en septiembre. Consta de 4 habitacion y 2 baños. Son 1.100€.
 
1.200 €/mes
Ref. 1264  95 m2  4  2
¿Buscas espacio, comodidad y una ubicación inmejorable para el próximo curso? ¡Atención, estudiantes! Descubre este amplio piso en una zona tranquila, a un paso de todo lo que necesitas.
Agencia asociada a la Asociación Inmobiliarias de Salamanca